Продается дом, 188.1 кв.м., /2 эт
Обзор№ - 1300
| Стоимость | 12 250 000 |
|---|---|
| Комнат в доме | 4 |
| Категория земли | Дачное некоммерческое партнерство |
| Тип комнат | Изолированные |
| Кадастровый номер участка | 50:26:0080804:65 |
| Ремонт | Черновая отделка |
| Материал стен (Авито) | Пеноблоки |
| Право собственности | Собственник |
| Тип парковки | Открытая во дворе |
| Категория земли Avito | Дачное некоммерческое партнёрство (ДНП) |
| Способ связи avito | По телефону и в сообщениях |
| Материал стен (Авито дома) | Пеноблоки |
| Тип строения | Дом |
| Площадь, кв.м. | 188.1 |
| Площадь участка, сот | 9 |
| Этажность | 2 |
| Материал стен | блочный |
Адрес
| Населенный пункт | деревня Таширово |
|---|
В избранное Продажа Дома.
Продажа жилого дома в Московской области, Наро-фоминского района г.о.,тер. ДНП УДачный у дер. Таширово. Общей площадью 188.1 кв. м., расположенного на участке 9 соток.
Дом сделан из пеноблоков и покрыт декоративной штукатуркой ( короед ). Крыша ондулин, на ней установлены снегозадержатели.
Участок огорожен забором из металлопрофиля. Есть калитка и откатные ворота. Парковочное место и дорожки выложены брусчаткой.
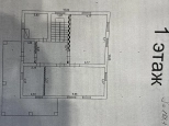
К дому прилегает большая терраса, планировки этажей приложены в фото. 2 с/у и 4 комнаты с кухней гостиной.
Колодец на участке 13 колец, септик, электричество 15 кв., все подключено к дому. В поселке есть газ.
Документы готовы к сделке.























































